Residential / Elphinstone, Victoria / Under Construction

BUBBS LANE RESIDENCE

Bubbs Lane Residence is conceived as a bold yet restrained architectural statement. It offers a retreat that stands in deliberate contrast to the conventions of domestic life.


Set within a rugged natural context, the home presents a strong formal presence while remaining highly attuned to the scale and nuances of daily experience. A restrained material palette reinforces the design’s emphasis on durability, robustness and clarity. Every component is selected and detailed with longevity in mind, supporting a built-to-last mentality that values low-maintenance and high-performance outcomes.

BUBBS LANE RESIDENCE image

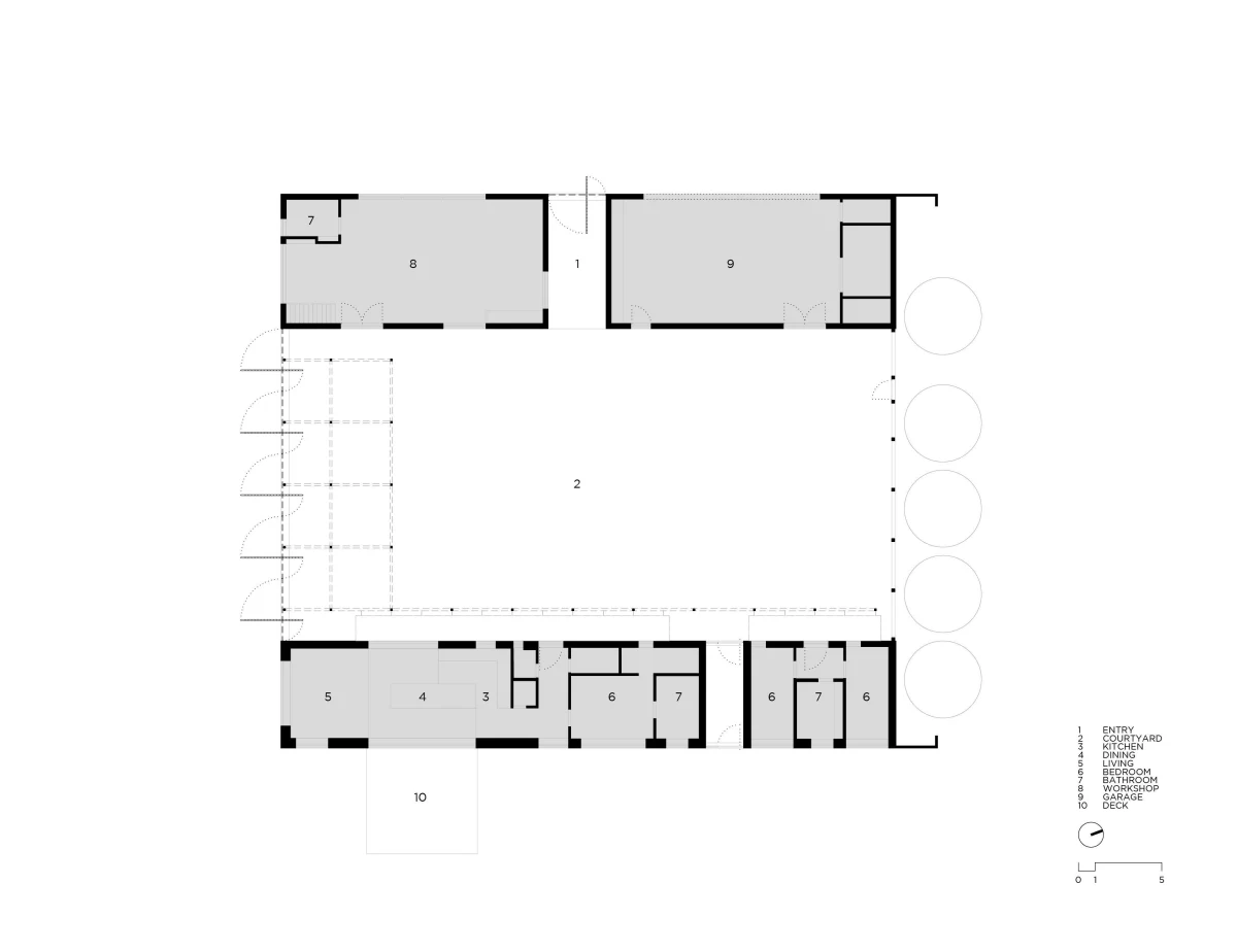
The central courtyard is protected from the extreme climate and native wildlife, creating a calm internal sanctuary. Storytelling is embedded through material contrast, spatial compression and moments of openness. From large-scale gestures to the smallest joinery detail, the project reflects a precise and thoughtful approach to making. It is a contemporary compound designed not only to shelter, but to engage. The home invites immersion and reflection through its architecture.

Bubbs Plan
Bubbs A
Bubbs C

Internally, the house is structured as a sequence of spatial rhythms that expand and contract, choreographing movement through the site.

Bubbs B
Bubbs D
Bubbs F
RELATED PROJECTS
Contact
Your Name

Please enter your full name.

Please enter your email so we can get in touch.

Please enter your comments.